Rustico in vendita

Erbusco, Via Consolare - Zocco
€ 94.000
Prezzo aggiornato
4 locali 4 locali
290 Mq 290 Mq
1 bagno 1 bagno

Rustico in vendita

Erbusco, Via Consolare - Zocco

Descrizione annuncio

ERBUSCO – Frazione Zocco

Casale indipendente su tre lati con giardino, portico e ampi spazi interni – da ristrutturare

In tranquilla zona residenziale nella frazione di Zocco, a pochi chilometri dal cuore della Franciacorta e comoda ai principali servizi, proponiamo in vendita un caratteristico casale d’epoca, libero su tre lati, con giardino privato e grande portico coperto.

La proprietà è situata su un lotto di circa 400 mq e presenta una superficie complessiva di oltre 240 mq distribuita su diversi livelli. L’immobile è completamente da ristrutturare, ma offre grandi potenzialità di recupero grazie agli ambienti spaziosi e a dettagli d’epoca come camino in muratura, colonne in mattoni a vista e pavimenti in cotto.

Distribuzione degli spazi:

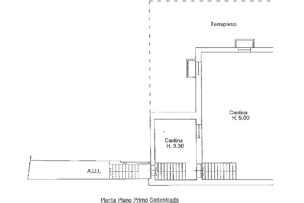
Piano seminterrato (circa 95 mq): due ampie cantine finestrate, ideali come locali accessori, taverna o deposito vini.Piano terra (circa 120 mq): grande openspace con camino antico e diverse aperture che garantiscono ottima luminosità. Gli ambienti sono attualmente spogli, ma si prestano perfettamente alla realizzazione di una spaziosa zona giorno, cucina, studio o camera.Portico esterno (circa 75 mq): copre due lati dell’abitazione, con pavimentazione in cotto e colonne in mattoni a vista. Ideale come zona relax all’aperto o pranzo estivo.Piano primo (sottotetto): locale accessorio con ripostiglio e servizio igienico. Possibilità di recupero ai fini abitativi, secondo le normative vigenti.

Caratteristiche principali:

Immobile interamente da ristrutturare, senza impiantiAmpia metratura e spazi interni completamente personalizzabiliGiardino privato con possibilità di accesso carraioStruttura d’epoca con elementi architettonici originaliZona residenziale tranquilla, a pochi minuti da Erbusco, autostrade e principali collegamenti

Ideale per:

Chi desidera una residenza unifamiliare di charme, dal sapore rusticoInvestitori o imprese edili per realizzare progetti di recupero e rivenditaSoluzioni ricettive: B&B, agriturismo, casa vacanze in zona di forte attrattiva turistica
Mostra tutto

Nelle vicinanze

Trasporto pubblico Trasporto pubblico
streparava adro
streparava adro
1,9 Km
Trasporto pubblico
2,0 Km
stazione di Cologne
stazione di Cologne
2,7 Km
Scuole Scuole
Scuole Elementari e Medie
1,7 Km
Plesso scolastico "Laura Bianchini"
1,7 Km
CFP Scuola Paideia
1,8 Km
Scuole
1,8 Km
Scuola Primaria
1,9 Km
Farmacia Farmacia
Busetti
1,9 Km
Farmacia
2,5 Km
Supermercati Supermercati
Despar
2,1 Km
LD market
2,4 Km
Sisa
2,7 Km
Negozi Negozi
Negozi
1,9 Km
Pane amore e fantasia
2,0 Km
Abbigliamento
2,4 Km
Bar Bar
Goblin's Pub
40 m
900
70 m
Buoena Vida Café
1,8 Km
Oratorio San Giovanni Bosco
1,8 Km
Bar
1,9 Km
Ristoranti Ristoranti
Trattoria Sole (Mingardi)
160 m
Cappuccini
730 m
Ristoranti
830 m
Agriturismo Cascina Carretto
1,1 Km
Quadra
1,2 Km
Mostra tutto

Caratteristiche

Rif.:
61127543
Piano:
3 di 1 (Piano su più livelli)
Camere da letto:
3
Arredamento:
Assente
Condizionamento:
Assente
Ascensore:
No
Mostra tutto
Prezzo Prezzo
€ 94.000
Rata mutuo Rata mutuo
€ 444 / mese
Spese annue Spese annue
€ 0
Proponi il tuo prezzoProponi il tuo prezzo

Classe Energetica

G
G
G
G
G
G
G
G
G
EP invernale del fabbricato:
EP estiva del fabbricato:
Anno di costruzione:
1960
Riscaldamento:
Assente

Prezzo ridotto di €1 (12%%)

Ti interessa visionare l'immobile?

Fissa un appuntamento  Fissa un appuntamento

Richiedi informazioni

Clicca su Leggi per aprire l'informativa
* Questi campi sono obbligatori

Calcola il tuo mutuo

Semplice e senza impegno
Anticipo

( % )
Mutuo

( % )

pochi semplici passi

inserisci i tuoi dati
Questionario completato
Grazie per aver richiesto un appuntamento senza impegno con un nostro Consulente del Credito e Assicurativo.

Hai inserito correttamente tutti i dati necessari e a breve riceverai una e-mail con un link da convalidare per inviare i tuoi dati.
Affiliato
Soluzioni Immobiliari Franciacorta Srl
Via Generale Carlo Alberto dalla Chiesa, 1 25030 Erbusco (BS)

Il nostro staff


  • Jesus Massimo Bergamaschi
    Affiliato

  • Simonetta Calanna
    Coordinatrice

  • Kinza Khatoon
    Responsabile
Via Generale Carlo Alberto dalla Chiesa, 1 25030 Erbusco (BS)
Zona: Franciacorta-Erbusco-Cazzago San Martino
Mostra su mappa
Orari: ORARIO DI APERTURA: Dal Lunedì al Venerdì 9.00 - 12.30 / 14.30 - 20.00 Sabato 9.00 - 12.30 / 14.30 - 18.00
Affiliato
Soluzioni Immobiliari Franciacorta Srl
Via Generale Carlo Alberto dalla Chiesa, 1 25030 Erbusco (BS)

2026 Tecnocasa Franchising S.p.A. - P. IVA 08365160152 - Via Monte Bianco 60/A 20089 Rozzano (MI). Ogni agenzia ha un proprio titolare ed è autonoma. Privacy policy | Policy utilizzo | Cookie policy